Via Giuseppe Verdi trilocale 70mq
Dati annuncio : Venta Trivani, Imperia
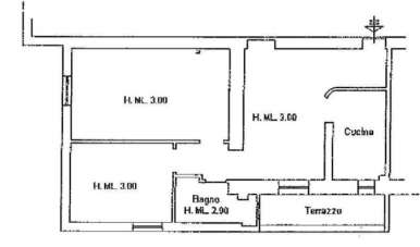
Imperia, Porto Maurizio, Via Verdi, in vendita appartamento ristrutturato nel 2020, al 2 piano, composto da: sala, cucinotto, 2 camere da letto, bagno finestrato e balcone. completamento arredato. Riscaldamento autonomo. Cantina e posto auto di proprietà. APE:D
L’indirizzo inserito nell’annuncio è SOLO indicativo della zona in cui è posizionato l’immobile. Il civico esatto non è riproducibile per dovuta riservatezza. Siamo aperti al pubblico dal lunedì al venerdì dalle 9:30 alle 12:30 e dalle 15:00 alle 19:00, il sabato dalle 9:00 alle 13:00 e su appuntamento tutta la settimana dalle 9:00 alle 19:00. Potete contattarci ai seguenti recapiti telefonici: 0183/ oppure per le vendite mentre per gli affitti solo al dalle 15:00 alle 19:00. la nostra agenzia vi seguirà in tutte le fasi della trattativa fino al rogito con una consulenza capillare in tutti i passi necessari alla conclusione della vendita. Vi aspettiamo numerosi per proporVi le nostre soluzioni immobiliari e per stimare, valutare e collaborare insieme per la vendita del Vostro immobile, certi e sicuri di poter ascoltare e soddisfare le Vostre richieste
- PropuestaOfrezco
- ContratoVenta
- Precio170.000,00 cop
- Año1975
- Habitaciones3
- Cantidad de pisos1
- Metros cuadrados totales70
- Habitaciones2
- Baño1
- Clase de energíaD
- Clase energética (ipe)65.24
- EstadoBuono
- AscensorNo
- CocinaCucinotto
- TerrazaNo
- JardínNs
- LagarSi
- CalefacciónAutonomo
- MueblesArredato
- CajaUno
- Gastos del condominio30.0
- ProvinciaImperia
- ComúnImperia
- DirecciónVia giuseppe verdi
- CódigoEa-90d6dd






