Via Garibaldi bilocale 66mq
Dati annuncio : Venta Dos habitaciones, Pontassieve
Nel comune di Pelago in Località san Francesco a soli pochi passi da Pontassieve e a tutti i principali servizi VENDESI APPARTAMENTI di nuova costruzione e di varie metrature:
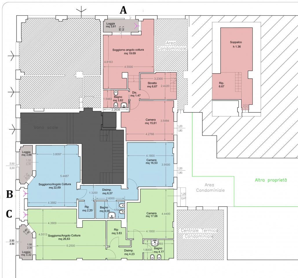
Soluzione ´´A´´; piano terra mq 62,40 (SUL) ingresso singolo composto da soggiorno con angolo cottura, camera matrimoniale, studio, bagno, terrazzo. 156.000 (VENDUTO)
Soluzione ´´B´´; piano terra mq 66,68 (SUL) ingresso singolo composto da soggiorno con angolo cottura, camera matrimoniale, ripostiglio-lavanderia, bagno, terrazzo. 165.000
Soluzione ´´C´´; piano terra mq 70,56 (SUL) ingresso singolo composto da soggiorno con angolo cottura, camera matrimoniale, ripostiglio-lavanderia, bagno, terrazzo. 175.000
NO SPESE CONDOMINIALI
Tutti gli immobili verranno consegnati completamente rifiniti con materiali di pregio, aria condizionata, termo singolo, CLASSE ENERGETICA ´´A´´
Tra il Valdarno Fiorentino, la Valdisieve e il Mugello nelle colline del Chianti, vantiamo esperienza e professionalità nel campo della mediazione immobiliare. Le residenze al centro di panorami di bellezza incomparabile, ville, villette familiari, coloniche, casali, aziende agricole, appezzamenti, fondi e attività commerciali, sono la nostra specialità.
Operiamo in Toscana e proponiamo proprietà di prestigio, offriamo la massima trasparenza e la migliore assistenza nelle trattative di compravendita di proprietà, consulenze tecnico fiscali, verifiche su immobili, stime e permute. Convenzionati con i principali istituti di credito nazionali, offriamo le migliori condizioni in termini di consulenza, tassi e disponibilità a finanziamenti agevolati.
Offriamo inoltre servizi visibilità a livello locale, nazionale ed internazionale tramite canali internet, riviste, quotidiani ed altri strumenti pubblicitari. Contattateci senza impegno e sapremo indicarvi le migliori occasioni di investimento sul territorio.
Classe Energetica: A - IPE: 0.00kWh/mq anno
- PropuestaOfrezco
- ContratoVenta
- Precio165.000,00 €
- Habitaciones2
- Plan1
- Metros cuadrados totales66
- Habitaciones1
- Baño1
- Clase de energíaA
- EstadoRistrutturato
- AscensorNo
- Tipo de construcciónResidenziale
- CocinaAbitabile
- TerrazaSi
- JardínNessuno
- LagarNo
- CalefacciónAutonomo
- MueblesNon arredato
- CajaNessuno
- DisponibilidadLibero al rogito
- ProvinciaFirenze
- ComúnPontassieve
- DirecciónVia garibaldi
- Fecha19-12-2025 05:46:20
- CódigoEa-20dabb




