Via Dogana 19 5 vani 101mq
400.000,00 COP
0 Como
0 Como
Dati annuncio : Venta Pentavani, Luni
Villetta in costruzione a Luni, località Dogana - Comfort, sostenibilità e stile.
Attualmente in fase di costruzione,
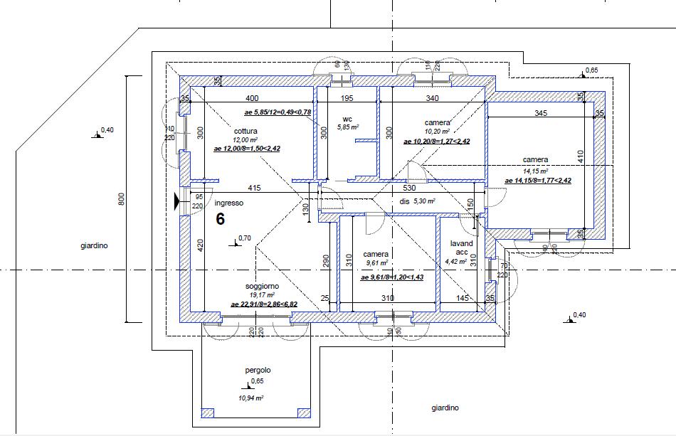
L´immobile, interamente sviluppato su un unico piano terreno, offre spazi ampi ben organizzati, ideali per ogni esigenza abitativa. La casa comprende: un luminoso soggiorno, perfetto per i momenti di relax con accesso al porticato, cucina abitabile, tre camere e due bagni.
Impiantistica all´avanguardia per il massimo comfort e risparmio energetico.
Riscaldamento a pavimento :
• Pompa di calore :
• Pannelli fotovoltaici :
• Infissi ad alta efficienza :
• Questa villetta rappresenta una scelta intelligente e sostenibile per chi desidera una casa moderna, ecologica e a basso impatto energetico.
- PropuestaOfrezco
- ContratoVenta
- Precio400.000,00 cop
- Año2024
- Habitaciones5
- Cantidad de pisos1
- Jardín de sqm300
- Metros cuadrados totales101
- Habitaciones3
- Baño2
- Clase de energíaA+
- Clase energética (ipe)0.0
- EstadoNuovo
- AscensorNo
- CocinaAbitabile
- TerrazaNo
- JardínNd
- LagarNo
- CajaUno
- ProvinciaLa spezia
- ComúnLuni
- DirecciónVia dogana 19
- Fecha12-11-2025 05:47:48
- CódigoEa-ec0662










