Via Biasi quadrilocale 100mq
Dati annuncio : Venta Cuatro habitaciones, Cagliari
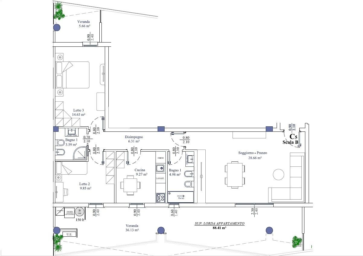
Cagliari – Via Biasi – Eleganti Quadrilocali con Ampie Verande
In contesto signorile e riservato, proponiamo quadrilocali di nuova generazione in una delle zone più ricercate di Cagliari, Via Biasi, con diverse soluzioni disponibili:
Primo piano con ampia veranda di 60 mq, ideale per chi desidera grandi spazi esterni;
Terzo e quinto piano con ampie verande di 36 mq, perfette per momenti di relax e convivialità.
Ogni appartamento è composto da:
Ingresso su ampio soggiorno con angolo cottura
Disimpegno
Tre camere da letto
Due bagni
Seconda veranda di 6 mq
Dotati di pompe di calore Samsung di ultima generazione, sistema Nuos per l’acqua calda, infissi in alluminio e rifiniture di livello superiore, gli immobili garantiscono alti standard di comfort ed efficienza.
Basse spese condominiali grazie alla presenza di pannelli fotovoltaici condominiali, che contribuiscono a ridurre i costi energetici delle parti comuni.
Ogni unità dispone di comoda cantina e posto auto coperto.
Classe energetica APE: A3
Prezzo a partire da € 460.000,00
Soluzioni esclusive, pronte da abitare.
Le immagini presenti nell’annuncio sono state parzialmente modificate con l’ausilio di intelligenza artificiale a scopo illustrativo.
- PropuestaOfrezco
- ContratoVenta
- Precio520.000,00 cop
- Año2025
- Habitaciones4
- Cantidad de pisos1
- Metros cuadrados13
- Bodega sqm6
- Metros cuadrados totales100
- Habitaciones3
- Baño2
- Clase de energíaA+
- Clase energética (ipe)34.96
- EstadoNuovo
- AscensorSi
- Tipo de construcciónPrestigio
- TerrazaNo
- JardínNs
- LagarSi
- CajaUno
- Gastos del condominio80.0
- ProvinciaCagliari
- ComúnCagliari
- DirecciónVia biasi
- Fecha19-07-2025 06:11:00
- CódigoEa-d2a317







