vendita VIA PRIMO MAGGIO bilocale 60mq
Dati annuncio : Venta vendita, Tavernerio
BB STUDIO SAS: sempre attenta alle esigenze di mercato, presenta appartamenti di pregio nel nuovo complesso GREEN a Tavernerio.
COMPLESSO RESIDENZIALE ´´PRIMO MAGGIO´´
Situato a breve distanza dal centro, comodo per tutti i servizi e ben collegato, il complesso si sviluppa su una minipalazzina di tre piani con ascensore, composta da 11 unità abitative oltre ad autorimesse e posti auto. Gli appartamenti, tecnologicamente avanzati, offrono diverse metrature e disposizioni per soddisfare ogni esigenza abitativa.
IL COMFORT E LA MODERNITA´: La modernità delle linee architettoniche pongono in risalto le scelte progettuali, con particolare attenzione al comfort ambientale.
La ricercata qualità dei materiali all´avanguardia e l´attenzione alla sostenibilità ambientale, consentono di costruire immobili in classe ´´A3´´.
CARATTERISTICHE PRINCIPALI: Impianto fotovoltaico centralizzato, Climatizzazione invernale/estiva (estiva solo predisposizione), termoarredi nei bagni, riscaldamento a pavimento, impianto videocitofonico, impianto TV-SAT centralizzato, interruttori e placche Bticino Living
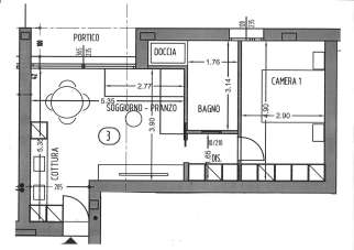
PROPOSTA BILOCALE:: soggiorno, cucina a vista , disimpegno, camera matrimoniale, bagno, piano terra con portico e giardino privato. Autorimessa compresa nel prezzo EURO. 180.000,00
CLASSE ENERGETICA: 12,75 kWh/m2 a
Accessori:
Aria Condizionata, Cancello Elettrico, Doppi Vetri, Impianto Fotovoltaico
- PropuestaOfrezco
- ContratoVenta
- Precio180.000,00 €
- Habitaciones2
- Jardín de sqm55
- Metros cuadrados totales60
- Habitaciones1
- Baño1
- Unidades de condominio11
- Clase de energíaA3
- Clase energética (ipe)12.75
- EstadoProssima realizzazione
- AscensorNo
- Tipo de construcciónSignorile
- CocinaAngolo cottura
- JardínPrivato
- PanoramaVista aperta
- AccesoriosAria condizionata, cancello elettrico, doppi vetri, impianto fotovoltaico
- RecepciónNo
- CajaUno
- ProvinciaComo
- ComúnTavernerio
- DirecciónVia primo maggio
- Fecha19-12-2025 05:33:59
- CódigoEa-4d5990











