vendita Via Nazionale Dresio bilocale 1190mq
150.000,00 €
0 Como
0 Como
Dati annuncio : Venta vendita, Vogogna
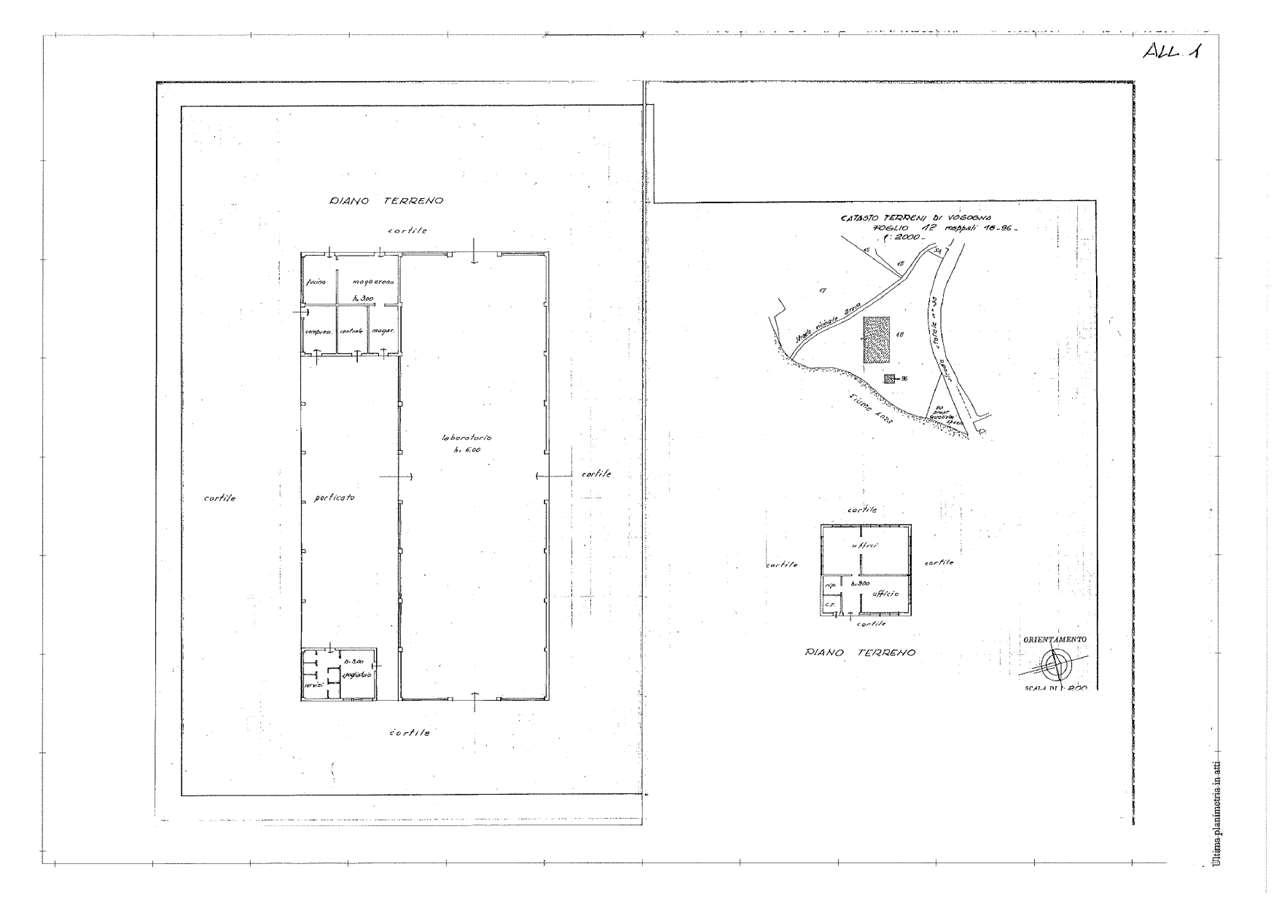
In posizione strategica e di forte passaggio, a pochi metri dall´uscita dell´autostrada e direttamente sull´asse del Sempione, proponiamo in vendita capannone industriale con uffici per una superficie complessiva di circa 1.190 metri quadrati, completo di ampia area esterna di circa 17.000 metri quadrati. L´immobile si presenta da ristrutturare, offrendo ampie possibilità di personalizzazione in base alle esigenze dell´attività. Grazie alla posizione e agli spazi disponibili, rappresenta una soluzione ideale per imprese del settore logistico, autotrasporti o attività produttive che necessitano di ampi piazzali di manovra e stoccaggio.
CLASSE ENERGETICA: In fase di valutazione
- PropuestaOfrezco
- ContratoVenta
- Precio150.000,00 €
- Habitaciones2
- Metros cuadrados totales1190
- Clase de energíaVa
- EstadoDa ristrutturare
- AscensorNo
- RecepciónNo
- ProvinciaVerbano-cusio-ossola
- ComúnVogogna
- DirecciónVia nazionale dresio
- Fecha29-10-2025 06:02:13
- CódigoEa-7b677f






