vendita VIA EMILIANI trilocale 87mq

110.000,00 €
0 Como
0 Como

MERONE in palazzina costruita nel 2014 proponiamo ultimi appartamenti in consegna al rustico:
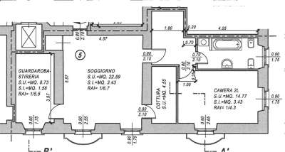
APPARTAMENTO 05 AL PIANO PRIMO composto da: ingresso, soggiorno, cucinotto separato, ampio disimpegno, camere da letto matrimoniale, cameretta/guardaroba, bagno. 2 balconi.
EURO. 110.000,00
Riscaldamento autonomo con caldaia murale, videocitofono, tetto ventilato con manto di copertura in tegole portoghesi, vespaio areato al piano terra, serramenti in legno con vetrocamera.
Posti auto EURO. 5.000,00
Per consegna al rustico s´intende l´immobile senza finiture interne (pavimenti, impianti, bagni e porte interne)
CLASSE D valore di progetto 100,68 kwh/m2a

La BB STUDIO s.a.s. con sede in Erba, Via C. Battisti n. 22/b, è un´affermata società immobiliare con esperienza pluriennale nel settore.
Opera dal 1993 nel territorio comprendente le Province di Como, Lecco, Milano e Monza - Brianza, collaborando in modo continuativo con l´Associazione di categoria F.I.M.A.A. COMO, la prima associazione dell´intermediazione in Italia, che le ha offerto negli anni la possibilità di estendere i suoi rapporti lavorativi in un territorio più ampio.
Ricopre tutte le fasce e categorie del mercato immobiliare, sia esso residenziale che industriale o commerciale, con ampia esperienza sulla cantieristica essendo ufficio vendite di varie società.
Punta soprattutto sulla trasparenza della contrattazione sia per la vendita che per l´affitto.
L´ assistenza alla clientela rimane in primo piano, proponendo nelle varie fasi della compravendita le soluzioni più consone alle proprie esigenze; da, inoltre, la possibilità di valutare diverse soluzioni anche per quanto riguarda i mutui agevolati tramite istituti di credito affiliati.


CLASSE ENERGETICA: B 41,19 kWh/m2 a

Accessori:
Ascensore, Doppi Vetri, Porta Blindata

  • PropuestaOfrezco
  • ContratoVenta
  • Precio110.000,00 €
  • Año2014
  • Habitaciones3
  • Cantidad de pisos3
  • Plan1
  • Metros cuadrados totales87
  • Habitaciones2
  • Habitaciones dobles1
  • Habitaciones individuales1
  • Baño1
  • Balcones2
  • Unidades de condominio10
  • Clase de energíaB
  • Clase energética (ipe)41.19
  • EstadoNuovo
  • AscensorSi
  • CocinaAngolo cottura
  • CalefacciónAutonomo
  • MueblesNon arredato
  • PanoramaVista aperta
  • AccesoriosAscensore, doppi vetri, porta blindata
  • RecepciónNo
  • ProvinciaComo
  • ComúnMerone
  • DirecciónVia emiliani
  • Fecha11-10-2025 06:11:44
  • CódigoEa-5be131