Ufficio 170mq
305.000,00 €

0 Como
0 Como
Dati annuncio : Venta Ufficio, Bergamo
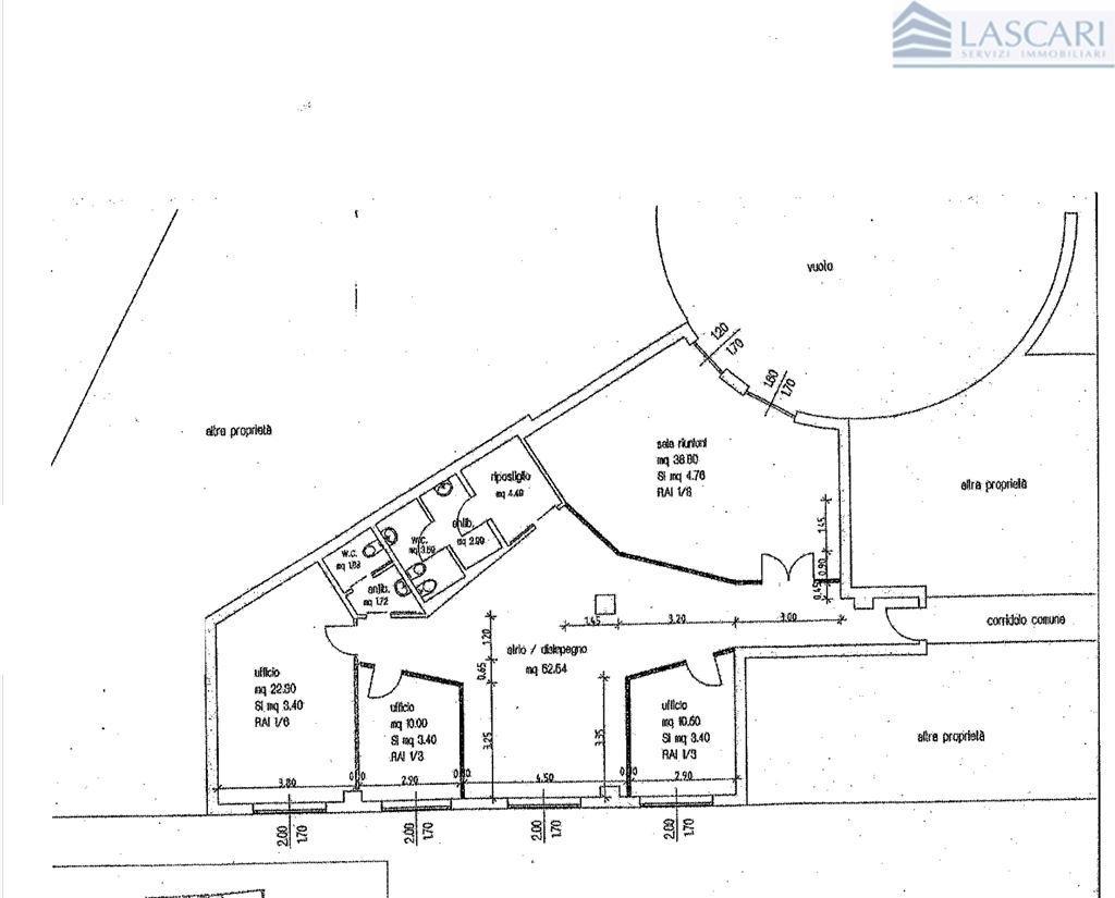
Proponiamo in vendita un luminoso ufficio di circa 170 mq, situato al primo piano di un edificio moderno con ascensore, all´interno del complesso residenziale “Triangolo”. L’immobile si compone di un ingresso con reception e sala d’attesa, quattro ampi locali, una grande sala riunioni divisibile, due bagni. Si presenta in buono stato di manutenzione e offre ampie possibilità di personalizzazione degli spazi interni, adattabili a diverse necessità professionali. Inoltre, è disponibile un box auto al piano interrato, acquistabile separatamente al prezzo di 35.000 euro. Possibilità acquisto arredi.
- PropuestaOfrezco
- ContratoVenta
- Precio305.000,00 €
- Plan1
- Metros cuadrados totales170
- Baño2
- EstadoBuono stato
- AscensorSi
- CajaBox singolo
- Tipo de propiedadUfficio
- ProvinciaBergamo
- ComúnBergamo
- Fecha16-10-2025 05:35:11
- CódigoEa-833ad7