PERIFERIA 550mq
Dati annuncio : Venta Ville, Conegliano
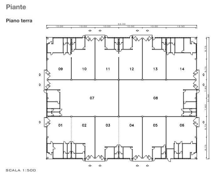
Rif. AP15 Vendesi o affittasi in Conegliano, immobili con destinazione commerciale, direzionale e artigianale, con unità di varie metrature, in capannoni realizzati in cemento armato precompresso con finiture di pregio. Le unità sono composte da ingresso indipendente, zona laboratorio/magazzino, uffici e servizi compresi di sanitari. I serramenti sono in alluminio, con lucernari che diffondono luce naturale dall´alto, la pavimentazione è rifinita in CLS e spolvero al quarzo. Sono predisposti per allacciamenti alla rete elettrica, telefonica, acqua e gas. All´esterno vi sono spazi adibiti a parcheggio e a manovra. Ogni unità dispone di anello antincendio a norma. Per informazioni sulle unità ancora disponibili si prega di contattarci. Trattative riservate in sede.
Si intende precisare che gli indirizzi presenti negli annunci non sono identificativi dell´ubicazione precisa dell´immobile, danno un riferimento solo generico della zona al cliente che ricerca, al fine di tutelare la privacy e riservatezza del venditore. Per visionare l´immobile o per ricevere ulteriori informazioni contattateci: 0438.1962179. - Le nostre sedi : Montebelluna (TV) - Maser (TV) - Conegliano (TV) - Pieve di Soligo (TV) - Maerne di Martellago (VE). Classe Energetica: B - IPE: 0.00kWh/mq anno
- PropuestaOfrezco
- ContratoVenta
- Precio-
- Metros cuadrados totales550
- Clase de energíaB
- Tipo de construcciónCommerciale
- ProvinciaTreviso
- ComúnConegliano
- Fecha02-11-2025 05:19:40
- CódigoEa-f8f4e9






