Negozio bilocale 125mq
700,00 €

0 Como
0 Como
Dati annuncio : Renta Negozio, Seveso
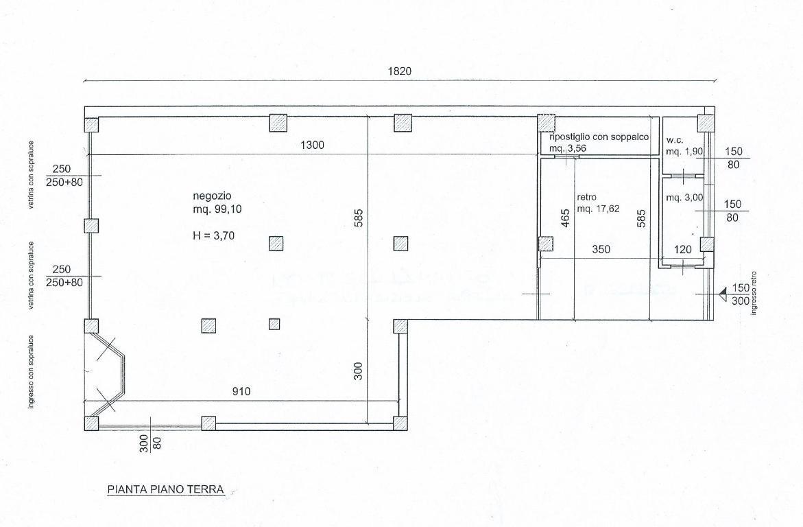
Seveso zona centrale, negozio/ufficio di mq. 125, piano terra con due vetrine, composto da: locale open-space in ordine di mq. 99, retro di mq. 26 con ripostiglio e bagno. Altezza locali mt. 3,70. Riscaldamento centralizzato: attualmente il negozio non ha radiatori, il retro invece è riscaldato. € 700/mese + € 110/mese di spese condominiali. Classe energetica ´´G´´ (77,62 KWh/mc/anno). Libero.
- PropuestaOfrezco
- ContratoRenta
- Precio700,00 €
- Habitaciones2
- Metros cuadrados totales125
- Baño1
- Clase de energíaG
- Clase energética (ipe)7762
- Clase energética (unidad de medida)Kwh/m³a
- Tipo de propiedadNegozio
- ProvinciaMonza e brianza
- ComúnSeveso
- Fecha08-11-2025 05:46:16
- CódigoEa-e087f3











