Montalcinello 10 vani 225mq
95.000,00 €

0 Como
0 Como
Dati annuncio : Venta Multivani, Chiusdino
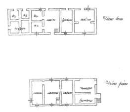
Nella campagna di Chiusdino, zona Montalcinello, in posizione isolata, alta e dominante, casale su due livelli di 225 mq commerciali. Ad oggi il piano terra comprende cantine, magazzini, bagno e ripostigli mentre al piano primo si trova l appartamento con una terrazza di 22 mq.
Il fabbricato necessita di completo rifacimento in quanto abbandonato da anni ed in parte franato.
Il fabbricato è circondato da 12,5 ettari di terreno divisi tra uliveto (2,5 h), seminativo (4,5 ettari), pascolo (4,8 h) e bosco (0,5).
Per informazioni 338 5495159 Classe Energetica: G - IPE: 0.00kWh/mq anno
- PropuestaOfrezco
- ContratoVenta
- Precio95.000,00 €
- Habitaciones10
- Cantidad de pisos1
- Metros cuadrados totales225
- Habitaciones4
- Baño2
- Clase de energíaG
- Tipo de construcciónResidenziale
- TerrazaSi
- CalefacciónAutonomo
- CajaPosto auto
- ProvinciaSiena
- ComúnChiusdino
- DirecciónMontalcinello
- Fecha01-10-2025 05:32:35
- CódigoEa-616e20











