Locale commerciale quadrilocale 125mq
200.000,00 €
0 Como
0 Como
Dati annuncio : Venta Locale commerciale, San Benedetto del Tronto
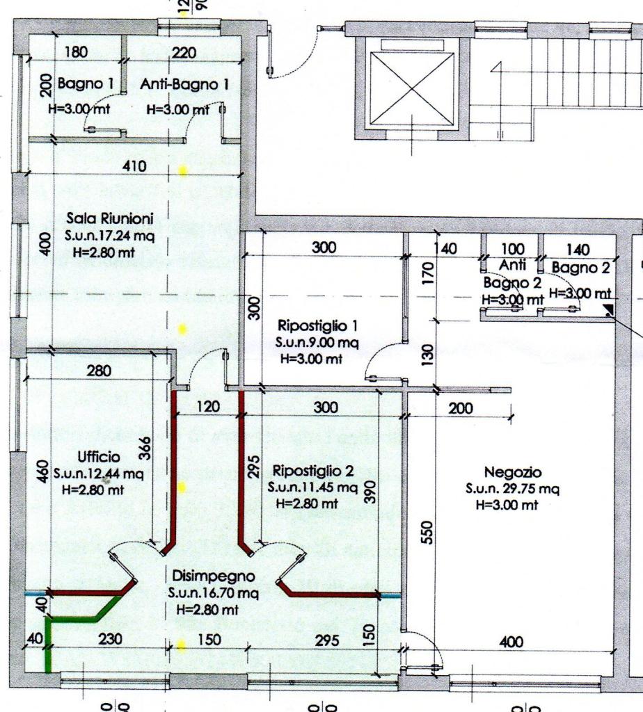
L´Agenzia Immobiliare Calderisi propone nel Comune di San Benedetto del Tronto localit Porto d´Ascoli un locale in una eccellente posizione e su una strada ad alto flusso pedonale e veicolare. Internamente il locale molto ben rifinito luminoso ha pavimento in gress 2 bagni 5 climatizzatori punti Lan gress tv e satellitari parcheggio canna fumaria Inoltre una parte del locale affittato a studio associato ad ?. 600,00+IVA mensile - SC9367460
- PropuestaOfrezco
- ContratoVenta
- Precio200.000,00 €
- Habitaciones4
- Cantidad de pisos3
- PlanT
- Metros cuadrados totales125
- Baño2
- Clase de energíaF
- Clase energética (ipe)136,95 kwh/m3
- EstadoOttimo
- AscensorNo
- LagarNo
- CalefacciónAutonomo
- MueblesNo
- Cargos por servicioAnnuali
- ProvinciaAscoli piceno
- ComúnSan benedetto del tronto
- Fecha14-10-2025 05:50:46
- CódigoEa-6d241f

Immobiliare calderisi
Viale A. De Gasperi 54 - San Benedetto Del Tronto