Appartamento trilocale 93mq

Dati annuncio : Venta Appartamento, Bellaria-Igea Marina
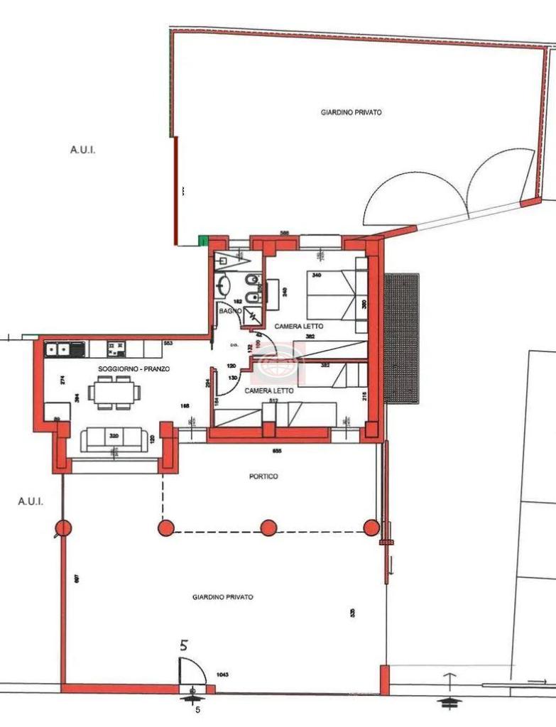
BELLARIA (TC1060a3): in zona centrale, vicino al mare e a due passi dall´Isola dei Platani, il viale principale di Bellaria, considerata una delle più belle ´´passeggiate´´ della Riviera, verranno realizzati degli splendidi appartamenti dall´alto valore strutturale e architettonico contesto di 35 unità di prossima realizzazione proponiamo appartamento trilocale posto al piano terra con ingresso indipendente, zona giorno con cucina a vista, 2 camere da letto, 1 bagno, portico e giardino privato di 169 mq. L´immobile verrà realizzato con FINITURE DI PREGIO e CARATTERISTICHE DI ALTO RISPARMIO ENERGETICO ed ECOSOSTENIBILITA´. Saranno in classe energetica ´´A´´, dotati di moderne tecnologie di isolamento, infissi in PVC con predisposizione ventilazione meccanica e vetri termo/acustico, impianto di riscaldamento e raffrescamento con pompa di calore, impianto fotovoltaico e gas free per la sostenibilità ambientale. Possibilità di acquistare a parte il garage, nel piano interrato, (€ 30.000) e /o un posto auto esterno (€ 10.000). N.B. Le presenti informazioni non costituiscono elemento contrattuale.
- PropuestaOfrezco
- ContratoVenta
- Precio339.000,00 €
- Habitaciones3
- Metros cuadrados totales93
- Habitaciones2
- Baño1
- Clase de energíaA+
- CocinaAngolo cottura
- JardínPrivato
- Tipo de propiedadAppartamento
- ProvinciaRimini
- ComúnBellaria-igea marina
- Fecha28-10-2025 05:45:06
- CódigoEa-1f9453




