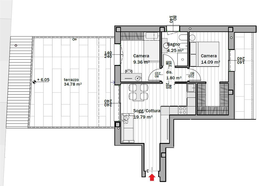
Appartamento trilocale 91mq

Dati annuncio : Venta Appartamento, Monza
CIVICO 27 una scelta ideale per chi cerca una residenza moderna, confortevole e sostenibile, con una forte attenzione alla comunità, alla tecnologia ed all’ambiente.
APPARTAMENTO A7 - II design moderno e le architetture all´avanguardia caratterizzano il progetto, con particolare attenzione alla creazione di spazi vivibili che includono ampi giardini interni e grandi balconi. Questo approccio garantisce agli abitanti la massima fruibilità degli spazi valorizzando la luce naturale e il contatto con la natura. L´edificio è progettato secondo i più alti standard di efficienza energetica, certificato in classe A3. Questo assicura una riduzione significativa dei consumi energetici e dell´impatto ambientale, oltre a garantire un notevole risparmio sui costi delle utenze per i residenti. Ogni unità abitativa dispone di un sistema di riscaldamento autonomo, consentendo ai residenti di personalizzare la temperatura del proprio ambiente domestico secondo le proprie preferenze, garantendo comfort e efficienza energetica. La domotica avanzata integra tecnologie per la casa intelligente, consentendo ai residenti di controllare illuminazione, climatizzazione, sicurezza e molto altro attraverso dispositivi smart o applicazioni, per una vita quotidiana semplificata e futuristica.
- PropuestaOfrezco
- ContratoVenta
- Precio380.000,00 €
- Habitaciones3
- Metros cuadrados totales91
- Habitaciones2
- Baño1
- Clase de energíaA3
- CocinaCucina a vista
- CalefacciónAutonomo
- Tipo de propiedadAppartamento
- ProvinciaMonza e brianza
- ComúnMonza
- Fecha02-10-2025 06:14:08
- CódigoEa-1adcdf











