Appartamento bilocale 64mq

Dati annuncio : Venta Appartamento, Lissone
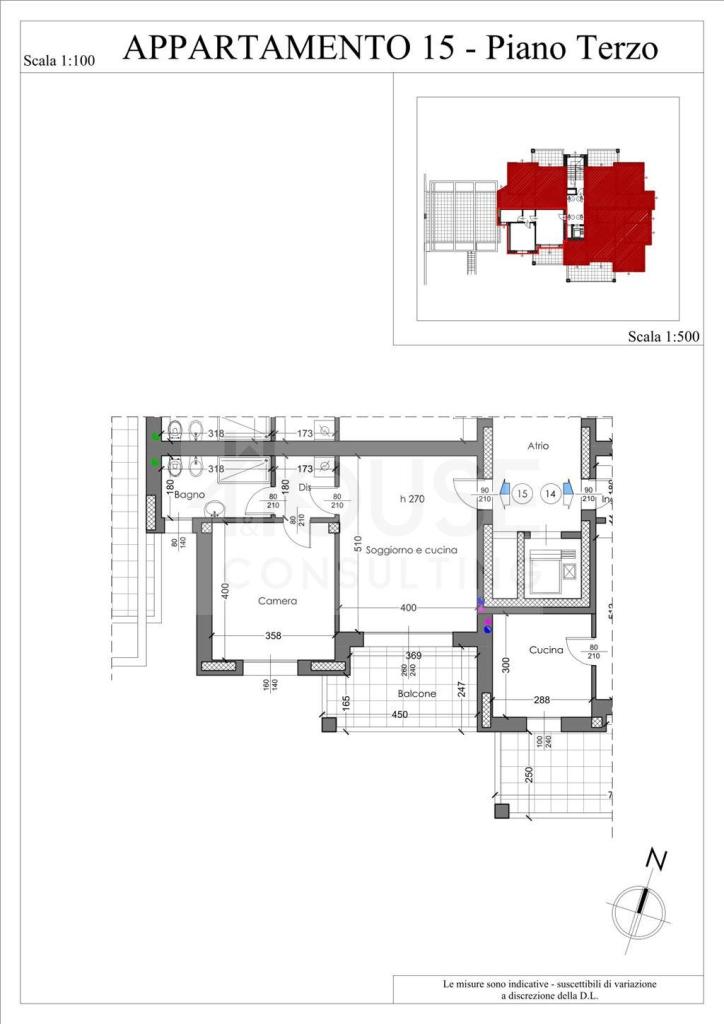
Residenza Graziella – Appartamento Rif. 15
Nel cuore di Lissone, a pochi passi dalla stazione FS e dai principali servizi, nasce un nuovo ed esclusivo progetto residenziale.
La “Residenza Graziella” propone 26 appartamenti di prossima realizzazione, da 2 e 3 locali, con ampi terrazzi o giardini privati, pensati per offrire un perfetto equilibrio tra design moderno, comfort abitativo ed efficienza energetica.
L’appartamento n. 15, situato al terzo piano, è composto da:
- Ingresso su luminoso soggiorno con ampia vetrata scorrevole e accesso al terrazzino
- Cucina abitabile
- Disimpegno zona notte
- Camera matrimoniale
- Bagno
Disponibilità di box singoli a partire da € 25.000, dotati di serranda sezionale automatica con telecomando, oppure posti auto scoperti a € 15.000.
Costruzione ad alto risparmio energetico, con Classe A e dotazioni di ultima generazione:
- Riscaldamento a pavimento
- Impianto fotovoltaico per la produzione di energia elettrica delle parti comuni
- Ventilazione meccanica controllata per il ricambio continuo dell’aria
- Isolamenti termici e acustici avanzati
- Serramenti in legno con triplo vetro certificati CasaClima
- Predisposizione per antifurto perimetrale e climatizzazione
- Tapparelle motorizzate con cassonetto a scomparsa
- Porte interne con cerniere a scomparsa e serratura magnetica
Finiture di alto livello: gres porcellanato o parquet, illuminazione LED su balconi e parti comuni, porte blindate e design contemporaneo.
Soluzioni ideali anche come investimento, grazie alla posizione strategica, vicina al centro di Lissone, alla stazione ferroviaria e a tutti i principali servizi (scuole, negozi, ristoranti, supermercati).
Per informazioni:
House&Consulting Arcore – Tel. 039 6012742 – www.hcarcore.it
Le immagini hanno scopo puramente illustrativo e non costituiscono elemento contrattuale.
Le misure riportate sono indicative e possono subire variazioni in fase di realizzazione.
- PropuestaOfrezco
- ContratoVenta
- Precio230.000,00 €
- Habitaciones2
- Plan3
- Metros cuadrados totales64
- Habitaciones1
- Baño1
- Clase de energíaA
- Clase energética (ipe)15
- Clase energética (unidad de medida)Kwh/m²a
- CocinaCucina a vista
- Tipo de propiedadAppartamento
- ProvinciaMonza e brianza
- ComúnLissone
- Fecha15-11-2025 05:10:09
- CódigoEa-61c4d9











