Appartamento bilocale 60mq

Dati annuncio : Venta Appartamento, Lierna
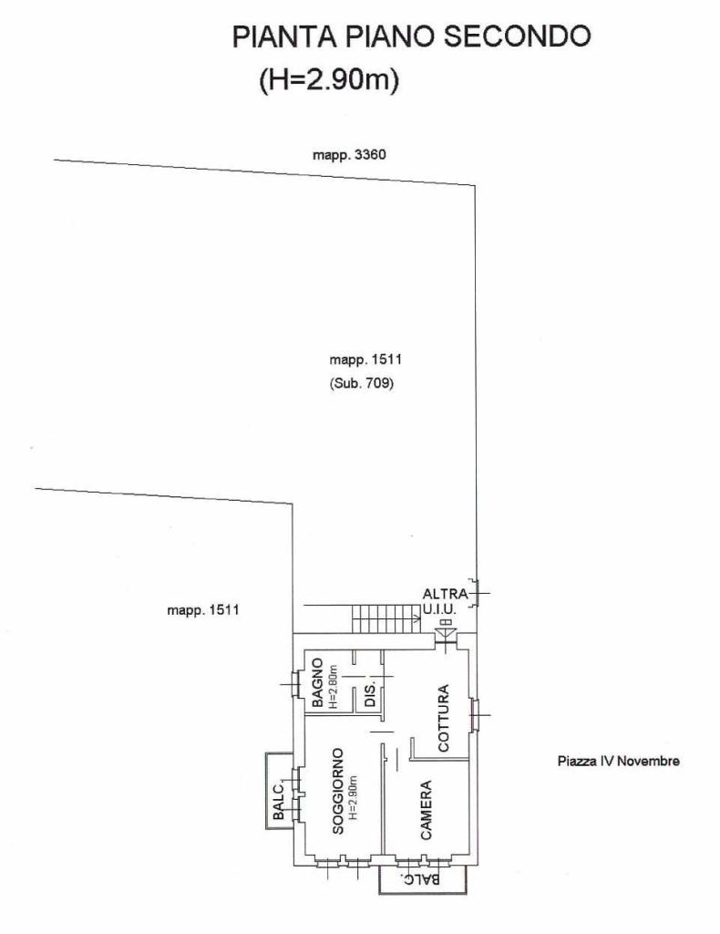
In una delle posizioni più esclusive di Lierna, in Piazza IV Novembre, direttamente affacciato sul lago, proponiamo in vendita un bilocale completamente ristrutturato, situato al secondo e ultimo piano di una palazzina fronte lago, a pochi passi dall’imbarcadero e da tutti i principali servizi del paese.
L’appartamento, caratterizzato da tripla esposizione, gode di un’eccellente luminosità e di affacci di grande valore paesaggistico. L’ingresso conduce alla cucina semi abitabile separata, con una vista dominante e aperta sul lago. In seguito entriamo nella zona giorno, accogliente e luminosa, con balcone vista lago, da cui si apre una suggestiva visuale sul ramo sul Lago di Como, incorniciato dalle montagne circostanti. Gli ambienti sono stati ristrutturati di recente, offrendo un’atmosfera contemporanea ed elegante.
Proseguendo, accediamo alla zona notte, dove troviamo una camera matrimoniale con balcone.
Il bagno finestrato, completamente ristrutturato, è dotato di doccia; antistante è stato ricavato un pratico spazio lavanderia. L’immobile è inoltre dotato di riscaldamento autonomo e viene venduto arredato.
Completa la proprietà una cantina al piano seminterrato. Presenti alcuni posti auto condominiali.
La soluzione si presta perfettamente come prima casa, casa vacanza o investimento, grazie alla posizione unica fronte lago, alla vicinanza ai collegamenti e al forte richiamo turistico di Lierna, uno dei borghi più autentici e ricercati del Lago di Como.
Per non perderti anteprime e contenuti utili seguici anche sulla nostra pagina Facebook ´´Lisolago Servizi Immobiliari´´ e su Instagram digitando lisolago_immobiliare, ti aspettiamo! Per maggiori informazioni visita il nostro sito internet www.immobiliarelisolago.it oppure contattaci per fissare un appuntamento senza impegno. Puoi chiamarci allo 0341.702013 o puoi venire a trovarci nel nostro ufficio di Mandello, via F.lli Pini Garibaldini n. 25, tutti i giorni dal lunedì al venerdì, dalle ore 09.00 alle ore 19.00, il sabato dalle ore 09.00 alle ore 12.00.
- PropuestaOfrezco
- ContratoVenta
- Precio250.000,00 €
- Habitaciones2
- Metros cuadrados totales60
- Habitaciones1
- Baño1
- Clase de energíaG
- Clase energética (ipe)29453
- Clase energética (unidad de medida)Kwh/m²a
- EstadoRistrutturato
- CocinaCucina abitabile
- CalefacciónAutonomo
- MueblesArredato
- PanoramaVista lago
- Tipo de propiedadAppartamento
- ProvinciaLecco
- ComúnLierna
- Fecha20-12-2025 06:25:52
- CódigoEa-6bc9e8











