Appartamento bilocale 45mq
Dati annuncio : Venta Appartamento, Empoli
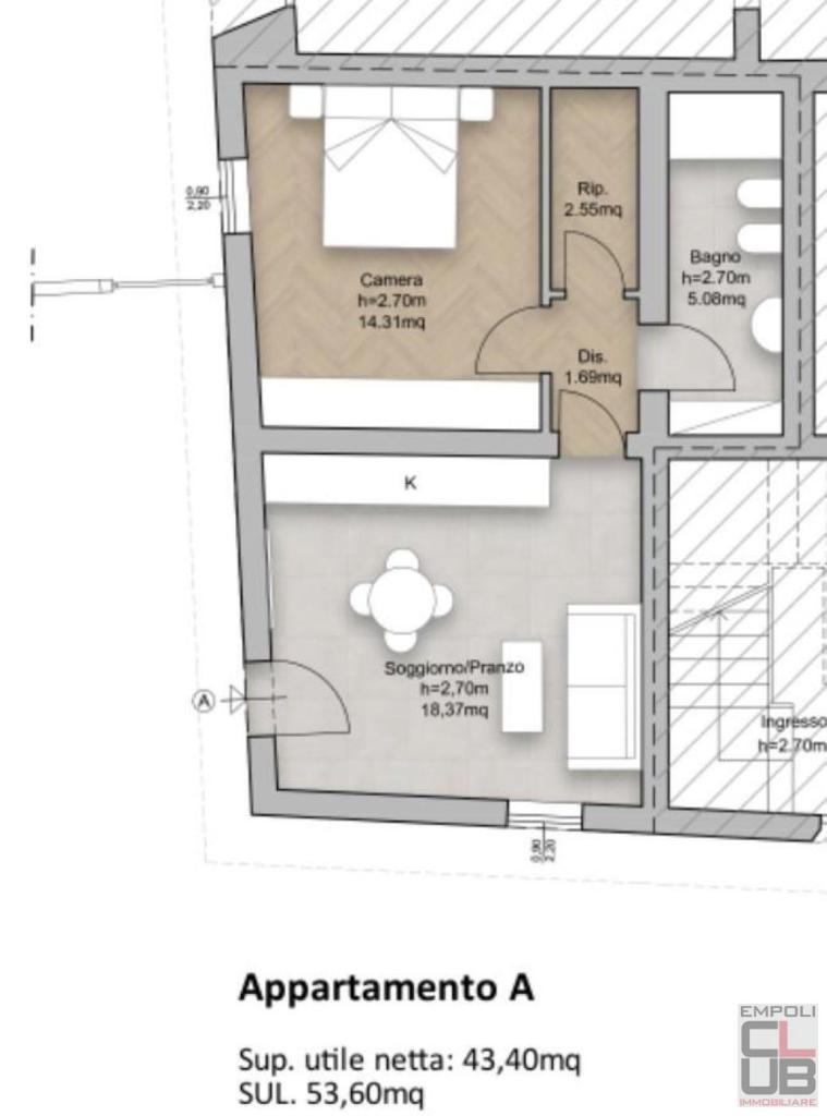
Rif.Ag. M/0573 - EMPOLI - RIF. M/0573 - PIAZZA GUIDO GUERRA. IN PICCOLO EDIFICIO COMPOSTO DA POCHE UNITA´ ABITATIVE, OGGETTO DI COMPLETA E RADICALE RISTRUTTURAZIONE CON OBIETTIVI DI CLASSIFICAZIONE ENERGETICA AMBIZIOSI. APPARTAMENTO BILOCALE IN RISTRUTTURAZIONE POSTO AL PIANO TERRA, CON INGRESSO INDIPENDENTE. Ingresso, soggiorno con angolo cottura, ripostiglio, disimpegno notte, camera da letto matrimoniale e servizio igienico. Il capitolato è di alto livello, con infissi a tenuta termica ed acustica, sistema di climatizzazione con pompa di calore inverter e fancoil, solai e mura coibentate, ed una previsione di finiture moderne in un oggetto ubicato alla perfezione (a due passi dal centro ma senza la schiavitù della ZCS). IDEALE PER INVESTIMENTO COME PER RESIDENZA PROPRIA. DISPONIBILI IN AGENZIA PLANIMETRIE E CAPITOLATO. Classe energetica PREVISTA: A3, Ipe 10,00 EURO 165.000,00 - SC9342887
- PropuestaOfrezco
- ContratoVenta
- Precio165.000,00 €
- Habitaciones2
- Cantidad de pisos2
- PlanT
- Metros cuadrados totales45
- Baño1
- Clase de energíaA+
- Clase energética (ipe)20 kwh/m2
- EstadoOttimo
- AscensorNo
- CocinaAngolo cottura
- LagarNo
- CalefacciónAutonomo
- MueblesNo
- Cargos por servicioAnnuali
- ProvinciaFirenze
- ComúnEmpoli
- Fecha09-10-2025 05:04:28
- CódigoEa-351234









