Appartamento 162mq

Dati annuncio : Venta Appartamento, Cesena
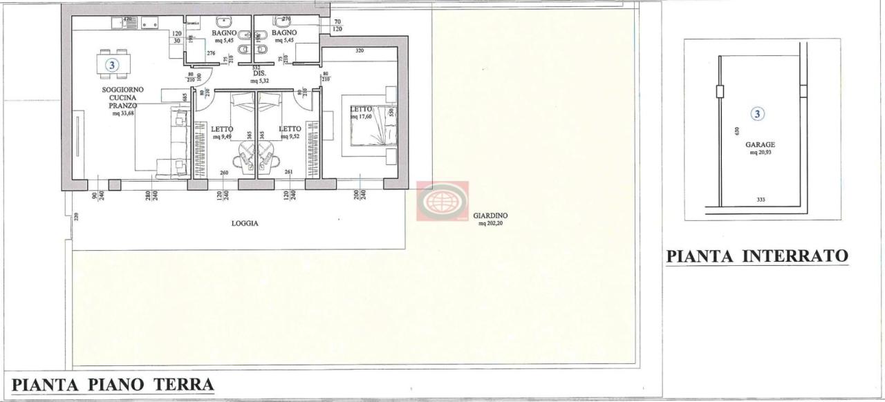
S. MANURO IN VALLE (AC607c): in contesto di dieci unità di prossima realizzazione proponiamo appartamento posto al piano terra con giardino privato (202 mq), zona giorno con cucina a vista di oltre 33 mq, 3 camere da letto e 2 bagni. Completa il tutto un garage di 21 mq. L´immobile verrà realizzato con FINITURE DI PREGIO e CARATTERISTICHE DI ALTO RISPARMIO ENERGETICO, ovvero: cappotto termico, riscaldamento autonomo a pavimento con pompa di calore, impianto fotovoltaico da 4 kw, infissi in pvc con anta-ribalta, zanzariere e avvolgibili in alluminio coibentato e motorizzati, tetto in legno ventilato, gronde e pluviali in acciaio inox, bagni con sanitari sospesi e box doccia in alluminio e cristallo, cassetta di sicurezza, luce di emergenza. Saranno inoltre forniti COMPLETI DI MACCHINARI e quindi già funzionanti i seguenti impianti: climatizzazione, allarme, aspirazione centralizzata, VMC (ventilazione meccanica controllata). N.B. Le presenti informazioni non costituiscono elemento contrattuale.
- PropuestaOfrezco
- ContratoVenta
- Precio490.000,00 €
- Metros cuadrados totales162
- Habitaciones3
- Baño2
- Clase de energíaA+
- CocinaAngolo cottura
- JardínPrivato
- CalefacciónAutonomo
- Tipo de propiedadAppartamento
- ProvinciaForli-cesena
- ComúnCesena
- Fecha20-12-2025 06:25:52
- CódigoEa-863109




