affitto altopascio monolocale 258mq

2.300,00 €
0 Como
0 Como

Dati annuncio : Renta affitto, Altopascio

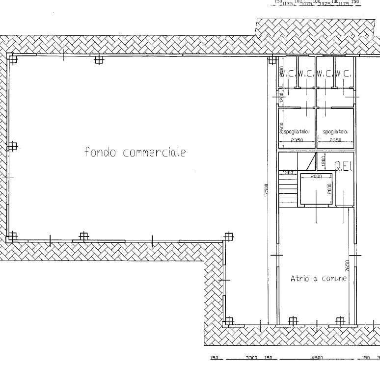
Fondo ad uso commerciale/ufficio sito al primo ed ultimo piano, costituito da unico vano con spogliatoio e doppi servizi. Corredato da ampio parcheggio con dodici posti auto di proprietà. Dotato di ascensore e predisposizione aria condizionata. Ottima posizione e visibilità.
CLASSE ENERGETICA: G 290 kWh/m2 a

Accessori:
Aria Condizionata, Doppi Vetri

  • PropuestaOfrezco
  • ContratoRenta
  • Precio2.300,00 €
  • Año2010
  • Habitaciones1
  • Cantidad de pisos2
  • Plan1
  • Metros cuadrados totales258
  • Baño1
  • Espacios de estacionamiento12
  • Clase de energíaG
  • Clase energética (ipe)290.0
  • EstadoOttimo
  • AscensorNo
  • CalefacciónAutonomo
  • MueblesNon arredato
  • PanoramaVista aperta
  • AccesoriosAria condizionata, doppi vetri
  • RecepciónNo
  • ProvinciaLucca
  • ComúnAltopascio
  • DirecciónAltopascio
  • Fecha11-10-2025 06:11:44
  • CódigoEa-0372cb
Sist3ma.it
Via Delle Ville 493 - Capannori