affitto 7 vani 313mq
-

0 Como
0 Como
Dati annuncio : Renta affitto, Sassuolo
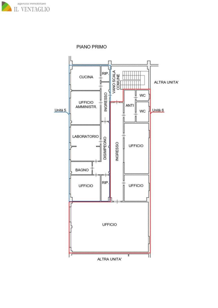
Zona COMET in posizione di alta visibilità con ampio e comodo parcheggio, disponiamo di ufficio al primo ed ultimo piano per circa 313 Mq diviso in vari ambienti con tre bagni. L´immobile è facilmente frazionabile in due unità rispettivamente di 124 Mq e 189 Mq.
Gli uffici sono da ristrutturare-pertanto sono personalizzabili sulle esigenze del futuro inquilino- con modalità e costi da concordare assieme alla proprietà.
CLASSE ENERGETICA: G
- PropuestaOfrezco
- ContratoRenta
- Precio-
- Habitaciones7
- Plan1
- Metros cuadrados totales313
- Baño3
- Clase de energíaG
- AscensorNo
- CalefacciónAutonomo
- RecepciónNo
- ProvinciaModena
- ComúnSassuolo
- Fecha18-10-2025 05:53:59
- CódigoEa-fed70e

