8 vani 210mq
Dati annuncio : Venta Multivani, Luni
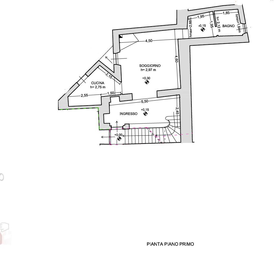
Luni , in palazzo del 1500 già adibito a Convento,composto da due appartamenti; vendesi appartamento all´ultimo piano, disposto su due livelli, (1° e 2° piano) con splendida vista mare e vallata del Magra, a poca distanza dalle Cave di Marmo di Carrara (10 minuti) soleggiatissimo.L´appartamento, di ampie dimensioni, ha superficie catastale 210mq, è composto al piano 1° spaziosa sala con caminetto in pietra e cotto, cucina arredata in muratura con piano e lavello realizzato a mano, interamente in marmo Carrara, bagno-lavanderia; al piano 2° ed ultimo, disimpegno-corridoio, 2 camere matrimoniali, una camera singola, una ampia camera armadi, bagno, ripostiglio. Da tutti gli ambienti splendida vista mare e panoramica A piano seminterrato due cantine per 20mq. Ristrutturazione completa nel 1990, tetto rifatto nuovo nel 2022 con coibentazione da 8cm e doppia guaina ardesiata, canale e pliviali nuovi. Perfettamente in ordine.Zona ricca di itinerari di trekking e di Mountan Bike e di itinerari eno-gastronomici
- PropuestaOfrezco
- ContratoVenta
- Precio175.000,00 cop
- Habitaciones8
- Cantidad de pisos3
- Bodega sqm20
- Metros cuadrados totales210
- Habitaciones4
- Clase de energíaG
- Clase energética (ipe)0.0
- EstadoBuono
- AscensorNo
- CocinaCucinotto
- TerrazaSi
- JardínNs
- LagarSi
- CalefacciónAutonomo
- PanoramaVista mare
- ProvinciaLa spezia
- ComúnLuni
- Fecha01-12-2025 05:09:07
- CódigoEa-3fdb8d











